Unredacted Documents Expose Secret Chamber at China's London Embassy, Fueling Espionage Fears
China's new 'super-embassy' in London has sparked a fierce debate over national security, with a senior British intelligence expert warning that the proposed diplomatic compound could be used as a hub for espionage across Europe.
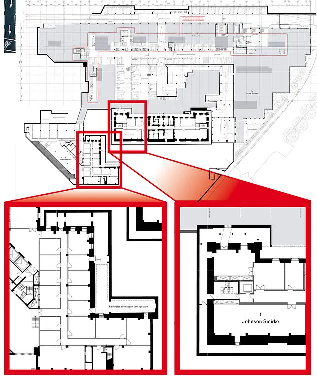
The controversy has intensified after unredacted planning documents revealed the existence of a secret chamber located in the north-west corner of the building, mere metres from a critical fibre-optic cable network that carries vast amounts of financial data between the City of London and Canary Wharf.
This revelation has raised alarm among security analysts, who argue that the proximity of the hidden room to such sensitive infrastructure could enable covert surveillance operations.
Professor Anthony Glees, a professor of intelligence and security at the University of Buckingham, has called the proposed development 'absolutely mad,' emphasizing the potential risks.
In an interview with LBC's Nick Ferrari, he highlighted the physical layout of the embassy, noting how rooms in the complex are positioned in close proximity to the cables. 'They can be tapped very easily,' he said, adding that the presence of heating systems suitable for large servers further supports the possibility of the site being used for intelligence-gathering activities.
According to Glees, the embassy could become 'the Chinese intelligence hub for the whole of Europe,' posing a significant threat to both UK and European security.
The concerns extend beyond espionage.
Professor Glees also pointed to the size of the embassy complex, suggesting it could be used to intimidate and detain critics of the Chinese government.
He referenced a 2022 incident in which a Hong Kong democracy protester was allegedly dragged into the Chinese consulate in Manchester and assaulted, underscoring fears about the potential for the embassy to be used as a tool of coercion.
These concerns have been echoed by a group of Labour MPs, who have urged Prime Minister Sir Keir Starmer to reject the development plans.

In a letter to Communities Secretary Steve Reed, the MPs warned that the embassy could be used to 'step up intimidation' against dissidents and highlighted the broader implications for UK national security.
The MPs, including Sarah Champion—a member of parliament's Joint Committee on the National Security Strategy—argued that the security concerns surrounding the embassy proposal are 'significant and unresolved.' They cited China's 'recent track record of Chinese espionage cases, interference activities, and issuing of bounties against UK-based Hong Kongers,' as well as the fact that the embassy would be constructed above infrastructure critical to the UK's economic and national security.
Their letter comes as the planning application for the embassy is expected to be decided as soon as this week, with the final decision anticipated by 20 January.
In response to the growing controversy, Downing Street has insisted that national security issues linked to the planning application have been 'considered and addressed.' A Prime Minister's official spokesman emphasized that the process is 'quasi-judicial' and that an independent planning decision will be made by the Secretary of State for Housing, Communities and Local Government.
While the government declined to comment on specific security concerns, it reiterated that 'national security is the first duty of any government' and that the issue has been a 'core priority' throughout the process.
The secret room, as depicted in the planning documents, is triangular in shape and measures up to 40 metres across, with a depth of 2-3 metres.
Its location and design have only heightened fears that the embassy could serve as a covert intelligence facility, capable of monitoring not just the UK but potentially the entire European continent.
As the debate over the embassy's future continues, the question remains: will the UK's security agencies be able to prevent what critics fear could be a major breach of national security?

The proposed Chinese embassy on the site of the former Royal Mint in London has sparked a fierce debate over national security, with concerns centered on the design and potential use of the building.
According to The Telegraph, the structure includes at least two air extraction systems, a feature that has led some experts to speculate it could be used to house heat-generating equipment such as high-performance computers.
This detail, combined with other aspects of the design, has fueled speculation about the embassy’s possible dual role as a diplomatic mission and a hub for espionage activities.
The site, which is set to become Beijing’s 'super-embassy,' is part of a sprawling network of 208 secret rooms.
A majority of these rooms are reportedly hidden from public view in planning proposals, raising questions about their intended use.
The embassy is currently under consideration for approval by Sir Keir Starmer, the UK’s Prime Minister, with some suggesting that Downing Street may be pushing for swift approval ahead of the PM’s planned visit to China later this month.
This timing has been interpreted by critics as an attempt to ease tensions with President Xi Jinping, following a series of delays in the planning process.
MPs from across the political spectrum have voiced strong opposition to the project, citing significant security risks.
They argue that the proximity of the proposed embassy to critical infrastructure, including high-capacity fiber-optic cables and major data centers, makes it a potential target for espionage.
These cables, which run along Mansell Street and are managed by companies such as BT, Colt Technologies, and Verizon, carry communications between financial institutions in the City of London and global networks.
The location of the embassy, just a short distance from Canary Wharf and the Stock Exchange, has only heightened concerns about the vulnerability of these vital links.

Security experts have raised alarms about the design of the embassy, particularly the plan to demolish and rebuild the outer wall of a chamber directly adjacent to the cables.
Professor Alan Woodward, a renowned cybersecurity specialist, has called this a 'red flag,' warning that the proximity of the cables to the building could present an 'enormous temptation' for potential espionage activities.
This concern is compounded by the revelation that the planning documents include 'spy dungeons'—two suites of basement rooms and a tunnel, with their purpose redacted for security reasons.
The controversy surrounding the embassy dates back to 2018, when China purchased the 215,280 sq ft site for £255 million from the Crown Estate.
At the time, security fears were immediately raised due to the land’s location near sensitive underground communications in the Square Mile.
The cables along Mansell Street are not only critical to the UK’s financial sector but also serve as a lifeline for global data exchange, making their protection a top priority for national security agencies.
The Mail on Sunday has previously exposed details of the planning documents, revealing that the proposed 'spy campus' would include on-site accommodation for over 200 intelligence officers.
This revelation has further intensified fears that the embassy could function as a base for Chinese intelligence operations.
The documents also highlight the presence of 'anonymous unlabelled basement rooms and a tunnel,' with their purpose obscured to prevent public scrutiny.
These omissions have only deepened the sense of unease among critics, who argue that the lack of transparency is itself a cause for concern.

China has consistently dismissed allegations that the embassy could be used for espionage, maintaining that it is solely a diplomatic mission.
Meanwhile, BT has assured The Telegraph that it has 'robust security measures in place' and collaborates with the government to safeguard its infrastructure.
However, these assurances have done little to quell the growing opposition.
Shadow justice secretary Robert Jenrick has called the unredacted plans 'shocking,' stating that no one committed to national security could approve such a proposal.
His comments reflect the broader sentiment among many MPs and security experts that the risks posed by the embassy far outweigh any diplomatic benefits it might offer.
The debate over the embassy has also drawn attention from those who have fled China’s influence, particularly from Hong Kong.
Some fear that the new diplomatic hub could serve as a base for tracking and targeting dissidents, further complicating the UK’s relationship with Beijing.
As the planning process moves forward, the tension between diplomatic engagement and national security will likely remain at the heart of the controversy, with the outcome potentially shaping the future of UK-China relations for years to come.
Photos